Jiangsu Gongtang Chemical Equipments Co., Ltd. Jiangsu Gongtang
  • 
  • 홈
  • 회사 소개+
    • 기업 개요
    • 회사 둘러보기
    • 인증서
    • 전시회
  • 제품+
  • 서비스 지원
  • 산업
  • 사례
  • 문의, 연락처
  • 동영상
  • 홈
  • 제품
  • 유리 라이닝 기둥
유리 라이닝 기둥
  • 유리 라이닝 기둥
  • 수평 유리 라이닝 저장 탱크
  • 유리 라이닝 기둥
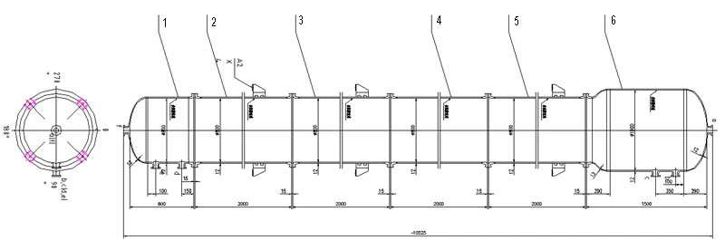
    외부 보강재가 적용된 맞춤형 유리 안감 기둥 섹션

유리 라이닝 기둥

증류, 추출, 흡수 공정용 내식성 컬럼

유리 라이닝 기둥은 재료가 매우 부식되거나 반응성이 강할 수 있는 까다로운 산업 공정에 적합합니다. 강철 외피는 기둥이 압력을 견딜 수 있는 강도를 제공하며, 유리 라이닝은 부식으로부터 보호하고 공정 물질이 금속과 접촉하지 않도록 합니다. 이 설계 덕분에 내식성 컬럼을 증류, 흡수, 추출과 같은 공정에서 보다 안전하고 안정적이며, 오래 지속되도록 합니다. 일반적으 증류, 추출, 흡수 등 다양한 분리 및 처리 공정에서 널리 사용됩니다.

견적 요청, 문의

이 내식성 컬럼은 GB25025-2010 또는 ASME 규격을 충족하여, 신뢰할 수 있는 성능과 산업 기준 준수를 보장합니다. 설계는 유리의 화학적 불활성과 강철 구조의 강도를 결합하여, 내구성과 내식성을 동시에 갖춘 장비를 제공합니다.

표준 유리라이닝 컬럼 모델 외에도 증류, 추출, 흡수 컬럼뿐의 맞춤형 솔루션을 제공할 수 있으며, 특정 작동 조건에 맞춘 기타 유리라이닝 공정 장비도 포함됩니다.

특징
  • 유리 라이닝 기둥은 강산, 산화제, 유기 용매 등 다양한 부식성 매체를 처리할 수 있습니다. 그러나 불소 이온이 포함된 용액 사용에 적합하지 않습니다.
  • 내부 유리 표면은 부드럽고 다공성이 없어 얼룩에 강하고 금속 표면보다 오염에 강하며 청소하기가 훨씬 용이합니다.
  • 라이닝이 불투과성이기 때문에 배치 간 교차 오염을 방지합니다. 동시에 유리의 화학적 안정성은 저장되거나 처리되는 물질의 순도, 색상 및 특성을 그대로 유지시켜 줍니다.
기술 사양
설계 온도 0℃~+200℃
설계 압력 컬럼 내부 구조 FV-0.25MPa
재킷 0.6MPa

기술 사양
DN D (mm) Max. length L (mm) 최대 길이 . 최대 단면 길이 L1  (mm) 조립 방식
200 219 3000 - 분리형 플랜지 조
250 273 3000 -
300 325 3000 500
400 406 3000 750 클램프로 조립
500 508 3000 1000
600 600 4000 1400
800 800 4500 2000
1000 1000 4500 2500
1200 1200 6000 4000
1400 1400 6000 4000
1600 1600 6000 4000
1800 1800 6000 4000
2000 2000 6000 4000

참고: 컬럼용 기둥 노즐 및 액세서리는 고객의 특정 요구 사항에 따라 맞춤 제작이 가능합니다.

고객 사이트에서 운영 중인 유리 라이닝 기둥
고객 사이트에서 운영 중인 유리 라이닝 기둥
고객 사이트에서 운영 중인 유리 라이닝 기둥
고객 사이트에서 운영 중인 유리 라이닝 기둥

유리 라이닝 장비용 액세서리도 제공합니다.

유리라이닝 장비에 대한 기술 지원이 필요하신가요?

저희 엔지니어들은 화학, 제약, 산업 응용 분야를 위한 내식성 유리 라이닝 반응기, 탱크 및 맞춤형 공정 장비에 대한 전문적인 기술을 제공합니다.

  • 그외 다른 제품
유리 라이닝 열교환기
유리 라이닝 열교환기
유리 라이닝 이중 뿔 건조기
유리 라이닝 이중 뿔 건조기
유리 라이닝 반응기
유리 라이닝 반응기
더 보기

유리 라이닝 기둥을 맞춤 제작할 수 있나요? 어떤 종류가 있나요?

네, 다양한 기둥 섹션에 대해 맞춤 제작이 가능하며, 호스형 유리라이닝 섹션도 포함됩니다. 프로젝트 필요에 따라 정류 타워, 추출 타워, 흡수 타워 및 기타 비표준 유리 라이닝 장비와 같은 맞춤형 장비도 제작하여 공급할 수 있습니다

유리 라이닝 기둥의 어떤 특징이 성능과 재료 품질을 보장하나요?

주요 장점 중 하나는 내부 표면이 매끄럽다는 점이며, 이는 쉽게 얼룩지지 않고 청소하기 쉽습니다. 유리 라이은 불투과성이기 때문에 교차 오염을 방지하며, 화학적 안정성은 가공 과정에서 재료의 순도, 색상 및 풍미를 보존하는 데 도움이 됩니다

Jiangsu Gongtang Chemical Equipments Co., Ltd. Jiangsu Gongtang
유리 라이닝 장비 제조업체
바로가기
  • 회사 소개
  • 회사 둘러보기
  • 인증서
  • 전시회
  • 서비스 지원
  • 프로젝트 사례
  • 동영상
제품
  • 유리 라이닝 반응기
  • 유리 라이닝 저장 탱크
  • 유리 라이닝 기둥
  • 유리 라이닝 열교환기
  • 유리 라이닝 이중 뿔 건조기
  • 부속 장치
  • 통합 프로세스 시스템
문의, 연락처
chrisz.jsjjgt@outlook.com
+86-523-89110022
+86-15861003636